


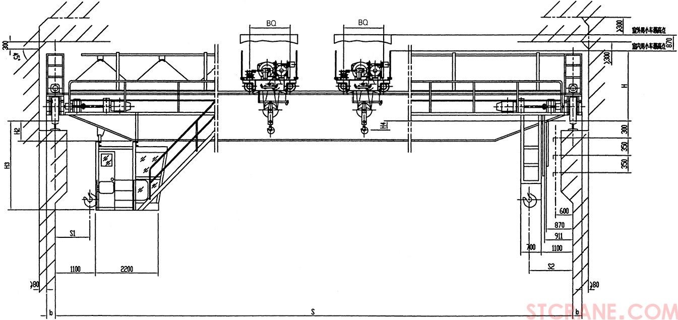
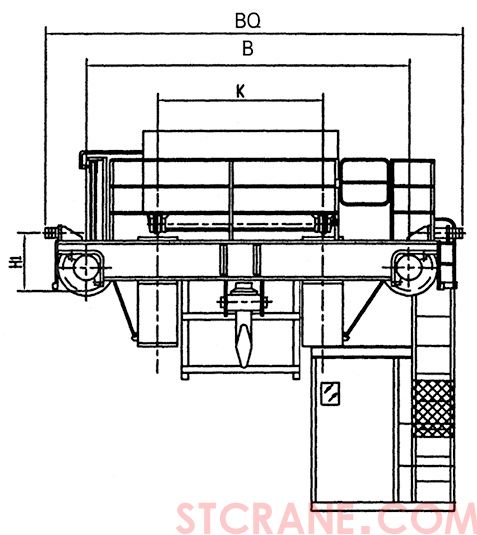
本起重機有兩臺小車,兩小車可以同時使用,也可以單獨使用,適用于廠礦企業的車間或露天倉庫吊運長件材料(木材,紙筒,管封,棒材)。
Double—trolley Bridge Crane
With two trolleys that works simultaneously or separately,this crane is suitable to lift long materials(wood,paper tube,pipe and bar)in workshops or outdoor stores in factories and mines.
注: 1.大車導電有角鋼和安全滑觸線兩種形式,供選擇。
2.操縱形式有室操(分開式和閉式),地操和遙控三種,供選擇。
Notes:
1.Power supply for the main vehicle can be either through angle steel or safety slide wire.
2.Operation can be done in the cabin(open-type and closed-type),on the ground or through remote control.

