
QB型防爆橋式起重機所有電機、電器防爆性能符合GB3836.2-2000《爆炸性氣體環境用電氣設備第2部分:隔爆型“d”》、整機性能符合JB/T5897-2006《防爆橋式起重機》標準之規定,經國家指定的防爆產品檢驗單位檢驗合格,取得了《防爆合格證》。防爆標志分別為ExdII BT4、Exd II CT4。
本產品適用于工廠內防爆能力不高于II B或II C級,引燃溫度組別不低于T4組的可燃性氣體或蒸氣與空氣形成的爆炸性氣體混合物的場所,適用的危險區域為1區或2區(詳見GB3836.1-2000)。
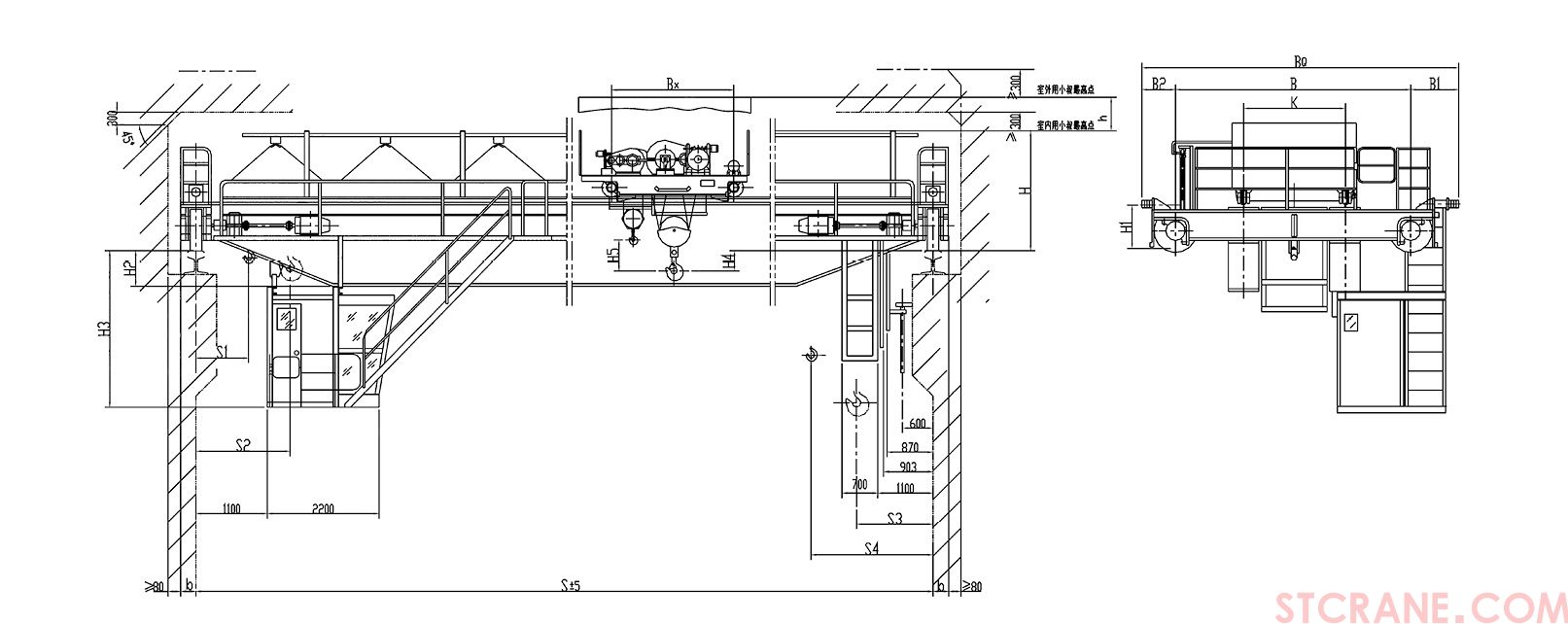
本產品一般為地面操作,根據用戶需要也可以司機室操作。工作級別為中級。
Explosion-proof performances of all motors and electric components of QB explosion-proof crane satisfy standards stipulated by GB3836.2-2000 Explosion-proof Electric Equipment Working in Explosive Gas Envircmment Part2:Flame-proof Type“D”,and the performance of the crane satisfies demands in JB/T5897-1991 Explosion-proof Crane.The crane has obtained Explosion-proof Certificate after passing examinations by units designated by the government to test explosion-proof products.The explosion-proof marks are Exd II BT4 and Exd II CT4 respectively.
This product is suitable for areas where the explosion。transmission is not higher than II B or II C and the ignition temperature group of inflammable gas or explosive mixture of steam and gas is not lower than T4.Applicable dangerous zones are zone 1 and zone 2(please refer to GB3836.1-2000 fordetails).
This product is generally controlled on the ground,but control from the driver’s cabin is also allowable.The working grade is intermediate.
注:5-10t起重機無副鉤
Note:5-10t crane does not have a auxiliary hook.
