


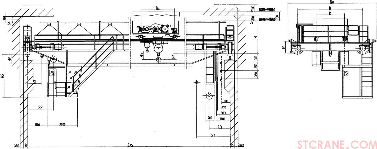
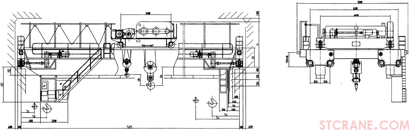
QDY吊鉤橋式鑄造起重機主要用于吊運熔融金屬的冶金、鑄造等場所,整機工作級別為A7,在主梁底部加設隔熱層裝置。起重機裝配與試驗符合國家質量監督檢驗檢疫總局所發的質檢辦特[2007]375號文件。其它吊運熔融的非金屬物料和吊運熾熱固態金屬的場所也可參照選用。(注:以下圖中H0為大車緩沖器增加的高度。H0≤250)
環境條件:
1、起重機的電源為三相交流,額定頻率為50HZ,額定電壓為380V;
2、工作環境溫度為-10~+60℃;
3、在+40℃的溫度下相對濕度不超過50%;
4、如超過上述要求,根據用戶需要按訂貨合同條款執行。
訂貨須知:
用戶在定貨或簽訂合同時,必須將本機的基本參數(額定起重量、起升高度、跨度等)
描述清楚,以便提供滿足工況要求和工作條件的產品。
Brief introduction of QDY series bridge foundry crane:
QDY bridge foundry crane with hook is mainly used at the place where the molten metal is lifted.The working class of the complete machine is A7,and thermal—protective coating is added at the bottom of the main girder.The assembling and test of the crane conform to the document No.ZJBT[2007]375 which was issued by General Administration of Quality Supervision,Inspection and Quarantine of the People’S Republic of China.The place where molten nonmetal material and red-hot solid metal is lifted also can refer to this document.(note:HO in the be[ow figure is the increased height of buffer of the crane.H0≤250).
Environmental conditions:
1.The power of crane is three—phase AC;rated frequency is 50HZ;rated voltage is 380V;
2.The temperature of working environment is-10~+60℃;
3.The relative humidity is no more than 50% when the temperature is+40℃;
4.If the requirements are more than above-mentioned,it shall carry out the requirements in the purchase contract as the user asks.
Ordering instructions:
The basic parameters(rated lifting weight,lifting height and span,etc.)of the crane shall be described clearly when the user orders goods or signs a contract so that the product which may satisfy the working condition can be supplied.


