


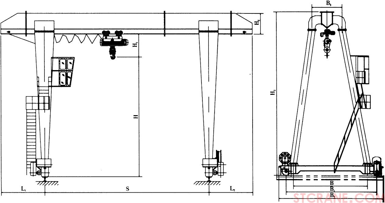
MH型5~20噸電動葫蘆門式起重機(桁架式)
MH Type 5~20t Electric Hoist Gantry Crane(Trussed type)
簡介 A Brief Introduction
MH型電動葫蘆門式起重機與CD、MD等型號的電動葫蘆配套使用,是一種有軌運行的中小型起重機,其適用起重量5~20噸,適用跨度12-30米,工作環境-20℃~+40℃內。
本產品為一般用途起重機,多用于露天場所及倉庫的裝卸或抓取物料,本產品有地面操縱和室內操縱兩種型式。
MH Model Electric Hoist Girder Gantry Crane is used together with CD MD Model Electric hoists.It is a track travelling small and medium—sized crane.Its proper Lifting weight is 5 to 20 tons.Proper span is 12 to 30 meters,its proper working temperature is -20℃ to 40℃.
This product is a regular crane widely used at open ground and warehouses to Iqad,unload or grab materials.It has two controlling methods,namely ground controlling and room controlling.
MH型3~20噸電動葫蘆門式起重機(箱型式)
MH Type 3~20t Electric Hoist Gantry Crane(Box type)
簡介 A Brief Introduction
MH型電動葫蘆門式起重機與CD MD等型號的電動葫蘆配套使用,是一種有軌運行的中小型起重機,其適用起重量3~20噸,適用跨度12~30米,工作環境-20℃~+40℃內。
本產品為一般用途起重機,多用于露天場所及倉庫的裝卸或抓取物料,本產品有地面操縱和室內操縱兩種型式。
MH Model Electric Hoist Girder Gantry Crane is used together with CD MD Model electrichoists.It is a track travelling small and medium-sized crane.Its proper Lifting weight is 3 to 20tons.Proper span is 12 to 30 meters,its proper working temperature is-20℃ to 40℃.
This product is a regular crane widely used at open ground and warehouses to lqad,unload or grab materials.It has two controlling methods,namely ground,controlling and room controlling.


